芦屋市六麓荘町
| 房屋信息 | |
|---|---|
| 房产类型 | 中古一户建 |
| 房产编号 | 128094 |
| 销售价格 | 38,500万日元 |
| 地址 | 芦屋市六麓荘町 |
| 交通 | JR東海道本線「芦屋」巴士17分 巴士停「日出橋」歩9分 阪急甲陽線「苦楽園口」歩46分 阪急神戸線「夙川」歩52分 |
| 土地面积 | 657.85㎡ |
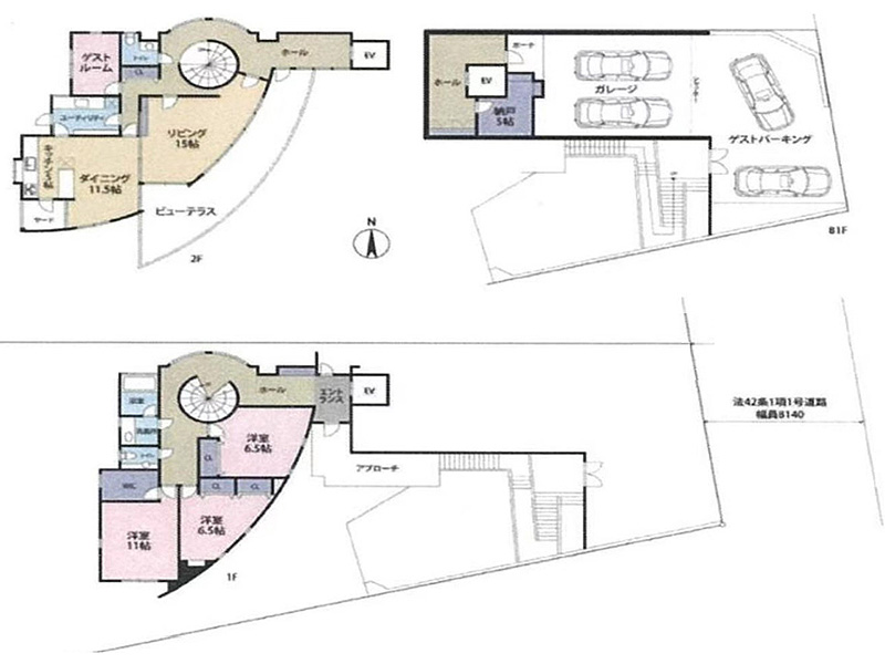
| 建筑面积 | 359.17㎡ |
| 构造 | 铁骨钢架混凝土造3层建 |
| 格局 | 4LDK |
| 用途地域 | 第1种低层住居专用地域 |
| 都市计画 | 市街化区域 |
| 地目 | 宅地 |
| 地势 | 平坦 |
| 建筑率 | 30% |
| 容积率 | 80% |
| 国土法届出 | 不要 |
| 权利 | 永久权 |
| 交易形态 | 中介 |
| 备注1 | セブンイレブン歩31分、関西スーパー歩33分、コープ歩38分 |
| 备注2 | 芦屋大学附属幼稚園歩12分、岩園小学校歩33分、山手中学校歩51分 |



