堺市堺区的房产
-
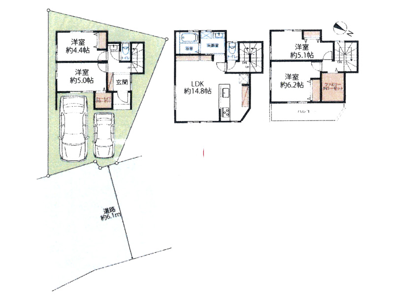
オレンヂシティ 堺東
土地最大37坪,超市・教育设施・车站在步行圈内,生活便利,自由设计
■房产类型:新建独立式住宅■销售价格: 3,180万日元~■地址: 堺市堺区幸通■交通:阪堺線「寺地町」歩13分 ■土地面积: 85.00㎡ ~■建筑面积: 88.00㎡ ~■格局: 3LDK
-
オレンヂシティ 御陵前II
日照良好,土地49坪,靠近车站・超市,生活便利,自由设计
■房产类型:新建独立式住宅■销售价格: 5,480万日元~■地址: 堺市堺区少林寺町東1丁■交通:阪堺線「寺地町」歩3分■土地面积: 165.28㎡■建筑面积: 88.00㎡ ~■格局: 4LDK
-
オレンヂシティ 寺地町
全5区画,车站・超市步行圈内,生活便利,自由设计
■房产类型:新建独立式住宅■销售价格:2,780万日元~■地址:堺市堺区南半町東1丁■交通:阪堺線「御陵前」 歩2分 ■土地面积:70.00㎡ ~ ■建筑面积:87.00㎡ ~■格局:4LDK
-
オレンヂシティ 上野芝
小学校步行3分,超市步行圈内,购物方便,自由设计新型一户建
■房产类型:新建独立式住宅■销售价格:2,780万日元~■地址:堺市堺区石津町2丁■交通:阪堺線「石津」・「石津北」歩14分 ■土地面积:72.29㎡ ■建筑面积:87.00㎡ ~■格局:4LDK
-
堺市堺区四条通
2026年新建・节能新标准住宅,超市步行圈内,购物方便
■房产类型:新建一户建■销售价格: 4,798万日元■地址: 堺市堺区四条通■交通:南海高野線「堺東」歩18分 ■土地面积: 128.22㎡ ■建筑面积: 106.40㎡■格局: 4LDK
-
堺市堺区宿屋町東2丁 1号棟
2026年2月下旬新建,土地37坪,靠近车站,超市步行圈内,生活便利,小中学校步行圈内,上下学方便
■房产类型:新建一户建■销售价格: 4,798万日元■地址: 堺市堺区宿屋町東2丁■交通:阪堺線「妙国寺前」歩2分 ■土地面积: 122.57㎡ ■建筑面积: 108.26㎡■格局: 4LDK
-
堺市堺区宿屋町東2丁 2号棟
2026年2月下旬新建,土地45坪,靠近车站,超市步行圈内,生活便利,小中学校步行圈内,上下学方便
■房产类型:新建一户建■销售价格: 4,398万日元■地址: 堺市堺区宿屋町東2丁■交通:阪堺線「妙国寺前」歩2分 ■土地面积: 149.97㎡ ■建筑面积: 98.12㎡■格局: 4LDK
-
堺市堺区寺地町西2丁 1号棟
2026年2月新建,车站・超市步行2分,生活便利,英彰小学校步行5分
■房产类型:新建一户建■销售价格: 4,798万日元■地址: 堺市堺区寺地町西2丁■交通:阪堺線「寺地町」歩2分 ■土地面积: 101.72㎡ ■建筑面积: 98.82㎡■格局: 4LDK
-
堺市堺区寺地町西2丁 2号棟
2026年2月新建,车站・超市步行2分,生活便利,英彰小学校步行5分
■房产类型:新建一户建■销售价格: 4,748万日元■地址: 堺市堺区寺地町西2丁■交通:阪堺線「寺地町」歩2分 ■土地面积: 96.07㎡■格局: 4LDK
-
堺市堺区山本町2丁
新建一户建・可即刻交付,超市步行5分,购物方便,可随时看房
■房产类型:新建独立式住宅■销售价格: 2,680万日元■地址:堺市堺区山本町2丁■交通:南海本線「堺」歩14分 ■土地面积: 66.84㎡ ■建筑面积: 91.53㎡■格局: 3LDK
-
堺市堺区老松町2丁
2025年11月新建・四室一厅,全居室2面采光,可随时看房,车站・超市・便利店・保育园・幼稚园・小学校在步行圈内
■房产类型:新建一户建■销售价格: 3,998万日元■地址:堺市堺区老松町2丁■交通:阪堺電気軌道阪堺線「東湊」駅歩6分 ■土地面积: 84.41㎡ ■建筑面积: 94.18㎡■格局: 4LDK
-
堺市堺区五月町
全新翻修完成・钢架造,靠近车站・超市,生活便利,榎小学校・三国丘中学校区房
■房产类型:中古一户建■销售价格: 2,780万日元■地址: 堺市堺区五月町■交通:南海高野線「堺東」歩5分■土地面积: 41.02㎡■建筑面积: 115.88㎡■格局: 4LDK
-
堺市堺区南旅篭町西3丁
角地・日照良好,车站・超市步行5分,生活便利,可自住,可租赁
■房产类型:中古一户建■销售价格: 1,200万日元■地址: 堺市堺区南旅篭町西3丁■交通:南海本線「湊」歩5分■土地面积: 37.48㎡■建筑面积: 64.68㎡■格局: 6DK
-
堺市堺区神保通
装修中,超市・教育设施,步行圈内,可即刻交付
■房产类型:中古一户建■销售价格: 3,499万日元■地址:堺市堺区神保通■交通:阪堺線「御陵前」歩17分■土地面积: 107.52㎡ ■建筑面积: 105.99㎡■格局: 4LDK
-
堺市堺区神保通 A号地
未入居・可随时看房・可即刻交付,土地32坪,超市步行4分,耐震等级3(最高等级),带地暖・浴室暖房干燥机
■房产类型:中古独立式住宅■销售价格: 3,880万日元■地址: 堺市堺区堺区神保通■交通: 阪堺線「御陵前」歩16分■土地面积: 104.57㎡■建筑面积: 100.44㎡■格局: 4LDK
-
堺市堺区神保通 C号地
未入居・可随时看房・可即刻交付,土地32坪,超市步行4分,耐震等级3(最高等级),带地暖・浴室暖房干燥机
■房产类型:中古独立式住宅■销售价格:3,850万日元■地址:堺市堺区堺区神保通■交通:阪堺線「御陵前」歩16分■土地面积: 107.72㎡ ■建筑面积: 106.91㎡■格局: 4LDK
-
堺市堺区賑町2丁
装修完成,看房活动开展中,车站・超市・教育设施在步行圈内,可即刻交付
■房产类型:中古一户建■销售价格: 2,980万日元■地址: 堺市堺区賑町2丁■交通: 阪堺線「寺地町」歩11分■土地面积: 78.37㎡ ■建筑面积: 81.20㎡■格局: 3LDK
-
ステュディオ堺フェニックス
换房东物件・收益率8.88%,车站・超市步行3分,朝东南向・日照良好
■房产类型:公寓■销售价格: 480万日元■地址:堺市堺区竜神橋町2丁■交通:南海本線「堺」歩3分■专有面积: 16.32㎡
-
山洋宿院ハイツ
换房东物件,收益率10.75%,超市步行2分,车站步行3分
■房产类型:公寓■销售价格: 480万日元■地址:堺市堺区寺地町西3丁■交通:阪堺線「寺地町」歩3分■专有面积:25.24㎡
-
御陵前ハイツ
换房东物件・表面利润回利10.55%,装修完成,车站步1分,生活设施全部在步行圈内
■房产类型:公寓■销售价格:1,080万日元■地址:堺市堺区南半町東1丁■交通:阪堺線「御陵前」歩1分■专有面积:84.11㎡
-
プリッ2 少林寺西
预计2025年10月下旬完成,新建收益物件,预想每月租金13万日元,超市・便利店步行3分,车站步行圈内,生活便利
■房产类型:收益物件■销售价格: 2,280万日元■地址:堺市堺区少林寺町西4丁■交通: 阪堺線「寺地町」歩6分■土地面积: 35.23㎡■建筑面积:46.19㎡■格局: 1R×2室
堺市西区的房产
-
堺市西区家原寺町1丁 1号棟
2025年11月新建,土地35坪,车站・超市・小中学校步行圈内,停车位2台
■房产类型:新建一户建■销售价格: 4,698万日元■地址: 堺市西区家原寺町1丁■交通: JR阪和線「津久野」歩9分■土地面积: 117.45㎡■建物面积: 102.55㎡■格局:4LDK
-
堺市西区家原寺町1丁 2号棟
2025年11月新建・看房活动开展中,土地49坪・日照良好,车站・超市・小中学校步行圈内,停车位2台
■房产类型:新建一户建■销售价格: 4,398万日元■地址: 堺市西区家原寺町1丁■交通: JR阪和線「津久野」歩9分■土地面积: 164.61㎡■建物面积: 101.26㎡■格局:4LDK
-
堺市西区家原寺町1丁 3号棟
2025年11月新建・看房活动开展中,土地38坪・日照良好,车站・超市・小中学校步行圈内,停车位2台
■房产类型:新建一户建■销售价格: 4,698万日元■地址: 堺市西区家原寺町1丁■交通: JR阪和線「津久野」歩9分■土地面积: 126.83㎡■建物面积: 99.15㎡■格局:4LDK
-
堺市西区家原寺町1丁 4号棟
2025年11月新建,土地46坪・日照良好,车站・超市・小中学校步行圈内,停车位2台
■房产类型:新建一户建■销售价格: 4,398万日元■地址: 堺市西区家原寺町1丁■交通: JR阪和線「津久野」歩9分■土地面积: 152.55㎡■建物面积: 97.49㎡■格局:4LDK
-
堺市西区家原寺町1丁 A号棟
看房活动开展中・新建一户建・娴静的住宅地・土地57坪,小学校步行4分,上下学方便,车站・超市步行圈内
■房产类型:新建一户建■销售价格: 4,090万日元■地址: 堺市西区家原寺町1丁■交通: JR阪和線「津久野」歩15分■土地面积: 189.13㎡■建物面积: 98.53㎡■格局:4LDK
-
堺市西区家原寺町1丁 B号棟
看房活动开展中・新建一户建・娴静的住宅地・土地44坪,小学校步行4分,上下学方便,车站・超市步行圈内
■房产类型:新建一户建■销售价格: 3,990万日元■地址: 堺市西区家原寺町1丁■交通: JR阪和線「津久野」歩15分■土地面积: 147.25㎡■建物面积: 100.61㎡■格局:4LDK
-
堺市西区家原寺町1丁 C号棟
看房活动开展中・新建一户建・娴静的住宅地・土地42坪,小学校步行4分,上下学方便,车站・超市步行圈内
■房产类型:新建一户建■销售价格: 4,290万日元■地址: 堺市西区家原寺町1丁■交通: JR阪和線「津久野」歩15分■土地面积: 140.37㎡■建物面积: 104.33㎡■格局:4LDK
-
堺市西区浜寺船尾町西4丁B号棟
独特设计样式住宅,朝西南向・日照良好,娴静的住宅地,挑高客厅,超市步行圈内,生活便利,可停车2台
■房产类型:新建一户建■销售价格: 4,280万日元■地址: 堺市西区浜寺船尾町西4丁■交通: 阪堺線「船尾」歩11分■土地面积: 124.54㎡■建物面积: 90.92㎡■格局: 3LDK
-
堺市西区浜寺船尾町西4丁C号棟
独特设计样式住宅,朝西南向・日照良好,娴静的住宅地,挑高客厅,超市步行圈内,生活便利,可停车2台
■房产类型:新建一户建■销售价格: 4,380万日元■地址: 堺市西区浜寺船尾町西4丁■交通: 阪堺線「船尾」歩11分■土地面积: 124.08㎡■建物面积: 92.33㎡■格局:4LDK
-
堺市西区上野芝向ヶ丘町4丁
换房东物件・表面利润回利8%,娴静的住宅地,车站・超市步行圈内
■房产类型:中古一户建■销售价格:1,080万日元■地址: 堺市西区上野芝向ヶ丘町4丁■交通:JR阪和線「上野芝」歩14分■土地面积: 68.00㎡■建物面积: 82.62㎡■格局: 5DK
-
堺市西区浜寺石津町東4丁
车站・超市步行圈内,生活便利,带庭院的平层建,可内部观览
■房产类型:中古一户建■销售价格: 280万日元■地址: 堺市西区浜寺石津町東4丁■交通: 阪堺線「石津」歩8分■土地面积: 70.30㎡■建物面积: 28.27㎡■格局:2K
-
堺市西区浜寺船尾町西1丁
装修完成・看房活动开展中・即刻交付,全电化住宅,车站・超市步行圈内,生活便利,小学校步行4分
■房产类型:中古一户建■销售价格: 1,780万日元■地址: 堺市西区浜寺船尾町西1丁■交通: 阪堺線「船尾」歩9分■土地面积: 45.51㎡■建物面积: 72.15㎡■格局: 4DK
-
堺市西区浜寺船尾町西2丁
车站・超市・教育设施,全部在步行圈内,生活便利,推荐作收益物件
■房产类型:中古一户建■销售价格: 44万日元■地址: 堺市西区浜寺船尾町西2丁■交通: 阪堺線「船尾」歩6分■建物面积: 70.07㎡■格局: 8DK
-
クレアコート上野芝ラベルヴィ
公寓最上层・风景良好,能观看到PL夏日烟花大会,车站・超市步行圈内,生活便利
■房产类型:公寓■销售价格:3,480万日元■地址:堺市西区上野芝町7丁■交通:JR阪和線「上野芝」歩9分■專有面積:73.80㎡■格局:3LDK
-
津久野台ファミリーマンションA棟
可随时看房・即刻交付,阳台朝南向,超市・教育设施步行圈内,作为收益物件也很推荐
■房产类型:公寓■销售价格: 198万日元■地址:堺市西区平岡町■交通:JR阪和線「津久野」歩21分■專有面積:45.95㎡■格局:3DK
-
堺市西区浜寺昭和町4丁
车站步行2分的店铺式住宅,土地44.69坪,作为新建户建用地和翻新物件都可,超市步行8分
■房产类型:中古一户建■销售价格: 2,280万日元■地址: 堺市西区浜寺昭和町4丁■交通: 南海本線「浜寺公園」歩2分■土地面积: 147.76㎡■建物面积: 152.56㎡
堺市東区的房产
-
オレンヂシティ 菩提町
朝南・日照良好,车站・购物设施・教育设施步行圈内的自由设计新型一户建
■房产类型:新建独立式住宅■销售价格:2,680万日元~■地址:堺市東区菩提町4丁■交通:南海高野線「初芝」歩10分■土地面积:64.49㎡■建物面积:87.00㎡~■格局:4LDK
-
堺市東区日置荘西町5丁
全新翻新物件,车站・超市・教育设施全部在步行圈内,生活便利
■房产类型:中古一户建■销售价格: 2,799万日元■地址: 堺市東区日置荘西町5丁■交通:南海高野線「初芝」歩6分■土地面积:100.37㎡■建物面积:104.89㎡■格局: 3SLDK
堺市南区的房产
-
オレンヂシティ 泉ケ丘
可建造平层建和ZEH住宅,土地最大41坪,购物设施・教育设施在步行圈内,全20区画,自由设计
■房产类型:新建一户建■销售价格: 3,480万日元 ~■地址: 堺市南区竹城台3丁■交通:南海泉北線「泉ケ丘」歩19分■土地面积: 101.10㎡ ~■建筑面积:88.00㎡ ~■格局: 3LDK
-
オレンヂシティ 光明池
土地最大41坪,娴静的住宅地,步行圈内商业设施充实,自由设计
■房产类型:新建一户建■销售价格: 3,880万日元 ~■地址: 堺市南区鴨谷台1丁■交通: 南海泉北線「光明池」歩12分■土地面积: 130.06㎡ ~■建筑面积:88.00㎡ ~■格局: 3LDK・4LDK
-
堺市南区三原台4丁
新建大平层户建住宅,娴静的住宅地・土地109坪,超市・教育设施步行圈内,可停车4台
■房产类型:新建一户建■销售价格: 8,880万日元■地址: 堺市南区三原台4丁■交通:南海泉北線「泉ヶ丘」歩26分■土地面积: 360.36㎡■建筑面积: 125.45㎡■格局: 3LDK
-
堺市南区庭代台1丁
新建一户建,娴静的住宅地・土地40坪,朝西南向・日照良好,超市・便利店步行圈内,生活便利
■房产类型:新建一户建■销售价格: 3,798万日元■地址: 堺市南区庭代台1丁■交通:南海泉北線「栂・美木多」歩23分■土地面积: 133.81㎡■建筑面积: 95.64㎡■格局: 4LDK
-
堺市南区晴美台3丁
样板房装修,地暖・车库齐备的4LDK・建筑物137㎡,超市・便利店步行2分,购物便利,日照良好
■房产类型:新建一户建■销售价格: 4,098万日元■地址:堺市南区晴美台3丁■交通:南海泉北線「泉ヶ丘」歩27分■土地面积:134.94㎡■建筑面积: 99.99㎡■格局: 4LDK
-
堺市南区槇塚台3丁
新建一户建,娴静的住宅地・土地40坪,小学校步行2分,超市步行9分
■房产类型:新建一户建■销售价格: 3,580万日元■地址:堺市南区槇塚台3丁■交通:南海泉北線「泉ヶ丘」巴士8分■土地面积: 134.07㎡■建筑面积: 93.15㎡■格局: 3LDK
-
堺市南区赤坂台5丁 1号棟
2025年9月建成・看房活动开展中,朝东南向・日照良好・娴静的住宅地・土地43.86坪,购物・上下学方便
■房产类型:新建一户建销售价格: 3,998万日元■地址: 堺市南区赤坂台5丁■交通: 南海泉北線「光明池」歩30分■土地面积: 145.00㎡■建筑面积: 102.67㎡■格局: 4LDK
-
堺市南区御池台4丁
新建・建筑中,娴静的住宅地・土地77坪,超市步行圈内,生活便利,小学校步行8分
■房产类型:新建一户建■销售价格: 4,580万日元■地址: 堺市南区御池台4丁■交通: 南海泉北線「栂・美木多」巴士15分■土地面积: 254.86㎡■建筑面积: 94.81㎡■格局: 3LDK
-
堺市南区御池台4丁
娴静的住宅地・土地70坪,小学校步行6分,上下学方便,超市步行圈内,生活便利
■房产类型:中古一户建■销售价格: 1,900万日元■地址: 堺市南区御池台4丁■交通:南海泉北線「栂・美木多」巴士15分■土地面积: 234.11㎡■建筑面积:119.58㎡
-
堺市南区深阪南
样板房装修,地暖・车库齐备的4LDK・建筑物137㎡,超市・便利店步行2分,购物便利,日照良好
■房产类型:新建一户建■销售价格: 3,580万日元■地址:堺市南区深阪南■交通:泉北高速線「泉ケ丘」歩16分■土地面积:80.45㎡■建筑面积:137.18㎡■格局: 4LDK
-
堺市南区高倉台2丁
土地面积超228坪,超宽客厅开放感无敌,超市・教育设施步行圈内,生活便利
■房产类型:中古一户建■销售价格: 3,980万日元■地址: 堺市南区高倉台2丁■交通:南海泉北線「泉ヶ丘」駅歩17分■土地面积: 755.30㎡■建筑面积:135.79㎡■格局: 3LDK
-
堺市南区鴨谷台1丁
建筑年数浅・看房活动开展中,土地60坪,超宽客厅,车站・商业设施・教育设施,全部在步行圈内
■房产类型:中古一户建■销售价格: 4,980万日元■地址: 堺市南区鴨谷台1丁■交通:南海泉北線「光明池」歩9分■土地面积: 200.34㎡■建筑面积: 124.52㎡■格局: 4LDK
-
堺市南区竹城台3丁
无建筑条件,土地面积约161.44坪,娴静的住宅街
■房产类型:土地■销售价格: 4,680万日元■地址: 堺市南区竹城台3丁■交通: 南海泉北線「泉ヶ丘」歩16分■土地面积: 533.69㎡
堺市中区的房产
-
オレンヂシティ 初芝
朝南向・日照良好,超市徒步圈内,购物方便,自由设计新型独立式住宅
■房产类型:新独立式住宅■销售价格:2,580万日元~■地址:堺市中区土塔町■交通:南海高野線「初芝」歩20分■土地面积:61.69㎡■建筑面积:87.00㎡ ~■格局:3LDK
-
オレンヂシティ 深井
超市・教育设施在步行圈内,生活便利,自由设计
■房产类型:新独立式住宅■销售价格:1,880万日元~■地址 堺市中区辻之■交通: 泉北高速線「深井」巴士9分■土地面积: 73.97㎡■建筑面积: 88.00㎡ ~■格局:3SLDK
-
オレンヂシティ 深井北町
靠近小学校,通学便利,超市在步行圈内,自由设计新建独立式住宅
■房产类型:新独立式住宅■销售价格:3,580万日元~■地址:堺市中区深井北町■交通: 泉北高速線「深井」歩21分■土地面积:102.00㎡ ~■建筑面积:87.00㎡ ~■格局:3LDK~
-
オレンヂシティ 深井北町II
靠近小学校,通学便利,超市在步行圈内,自由设计新建独立式住宅
■房产类型:新独立式住宅■销售价格:2,580万日元~■地址:堺市中区深井北町■交通: JR阪和線「上野芝」歩20分■土地面积:65.18㎡■建筑面积:87.00㎡ ~■格局:3LDK
-
堺市中区深井北町
2025年6月完成・看房活动开展中,超市・教育设施在步行圈内,朝南向・日照良好,可停车2台
■房产类型:新建一户建■销售价格: 3,398万日元■地址: 堺市中区深井北町■交通: JR阪和線「上野芝」歩19分■土地面积: 102.83㎡■建筑面积: 97.29㎡■格局: 4LDK
-
堺市中区深井清水町
新建户建・建造完成・可看房,朝南向,日照良好
■房产类型:新建一户建■销售价格:3,680万日元■地址:堺市中区深井清水町■交通: 南海泉北線「深井」歩14分■土地面积: 134.59㎡■建筑面积: 89.42㎡■格局:3LDK
-
堺市中区深阪6丁
新建户建,超宽客厅+大型衣帽间,超市步行圈内,停车位2台
■房产类型:新建一户建■销售价格: 2,988万日元■地址: 堺市中区深阪6丁■交通: 南海泉北線「泉ヶ丘」駅歩20分■土地面积: 94.52㎡■建筑面积: 114.59㎡■格局: 4LDK
-
堺市中区深阪6丁 3号棟
2025年11月预计完成,土地44坪,超市步行6分,购物方便
■房产类型:新建一户建■销售价格: 3,380万日元■地址:堺市中区深阪6丁■交通: 南海泉北線「泉ケ丘」歩23分■土地面积:148.59㎡■建筑面积: 98.82㎡■格局: 4LDK
-
堺市中区陶器北
带建筑条件土地,自由设计,可土地单卖(要相谈)
■房产类型:新建一户建■销售价格: 2,730万日元■地址: 堺市中区陶器北■交通: 南海高野線「北野田」歩25分■土地面积:69.31㎡■建筑面积: 107.73㎡
-
堺市中区八田北町
令和5年1月重新装修完成,东南角地,日照良好
■房产类型:中古一户建■销售价格: 1,700万日元■地址: 堺市中区八田北町■交通:泉北高速鉄道『深井』駅歩19分■土地面积: 54.43㎡■建筑面积: 102.43㎡■格局: 3LDK
-
堺市中区八田北町
2024年7月翻新装修完成,便利店步行3分・超市步行4分,购物方便,可随时看房
■房产类型:中古一户建■销售价格:1,880万日元■地址:堺市中区八田北町■交通:南海泉北線「深井」歩18分■土地面积: 48.72㎡■建筑面积: 77.94㎡■格局: 3LDK
-
堺市中区深井北町
土地约63坪,超市步行8分,购物方便,教育设施步行圈内,上下学方便,2栋建筑物・只作为收益物件也很推荐
■房产类型:中古一户建■销售价格: 1,180万日元■地址: 堺市中区深井北町■交通: 南海泉北線「深井」歩22分■土地面积: 209.06㎡■建筑面积: 147.77㎡■格局: 3LDK、3DK
-
堺市中区土塔町
翻新物件,超市步行10分,购物方便
■房产类型:中古一户建■销售价格: 2,699万日元■地址:堺市中区土塔町■交通:南海泉北線「深井」歩20分■土地面积: 100.30㎡■建筑面积:103.11㎡■格局: 3LDK
-
堺市中区深阪1丁
土地42坪,超市步行7分,购物方便,可停车3台
■房产类型:中古一户建■销售价格: 2,080万日元■地址: 堺市中区深阪1丁■交通: 南海泉北線「泉ケ丘」歩34分■土地面积: 140.86㎡■建筑面积:96.39㎡■格局: 4LDK
-
堺市中区深井北町
换房东物件・表面利润回利10.15%,室内干净漂亮,超市・教育设施步行圈内
■房产类型:收益物件■销售价格: 650万日元■地址:堺市中区深井北町■交通: 南海泉北線「深井」歩20分■土地面积: 43.55㎡■建筑面积: 47.46㎡■格局: 2LDK
-
堺市中区八田南之町
无建筑条件・朝南向・日照良好・住宅地,超市・教育设施步行圈内
■房产类型:土地■销售价格: 2,000万日元■地址: 堺市中区八田南之町■交通: 南海泉北線「深井」歩23分■土地面积: 92.52㎡
-
堺市中区深井北町
土地55.98坪,无建筑条件,超市步行6分,购物方便,教育设施步行圈内,上下学方便
■房产类型:土地■销售价格: 1,180万日元■地址:堺市中区深井北町■交通: 南海泉北線「深井」歩22分■土地面积: 209.06㎡
堺市北区的房产
-
堺市北区南花田町 2号棟
新建户建4LDK,超市・药局・便利店・公园步行圈内,娴静的住宅地
■房产类型:新建一户建■房产售价: 4,798万日元 ■地址: 堺市北区南花田町■交通:大阪メトロ御堂筋線「新金岡」駅歩20分■土地面积: 97.47㎡■建筑面积: 100.40㎡■格局:4LDK



