大阪市東住吉区山坂5丁目
| 房屋信息 | |
|---|---|
| 房产类型 | 收益公寓 |
| 房产编号 | 128143 |
| 销售价格 | 11,100万日元 |
| 地址 | 大阪市東住吉区山坂5丁目 |
| 交通 | JR阪和線「鶴ヶ丘」歩5分 地下鉄御堂筋線「西田辺」歩10分 |
| 土地面积 | 171.90㎡ |
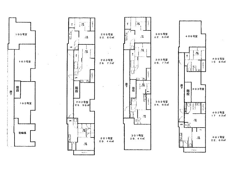
| 建筑面积 | 409.28㎡ |
| 构造 | 铁骨造4层建 |
| 格局 | 16室 |
| 用途地域 | 第2种中高层住居地域 |
| 都市计画 | 市街化区域 |
| 地目 | 宅地 |
| 建蔽率 | 60% |
| 容积率 | 200% |
| 地势 | 平坦 |
| 国土法届出 | 不要 |
| 权利 | 永久权 |
| 交易形态 | 中介 |
| 备注1 | セブンイレブン歩5分、ライフ歩6分、サンディ歩9分 |
| 备注2 | 月额842,660万日元・年额10,111,920万日元,租赁中 |



